ISG型立式管道离心泵是单级单吸立式管道离心泵采用IS型离心泵之性能参数,在一般立式泵的基础上进行巧妙组合设计而成。同时根据使用温度、介质等不同在ISG型基础上派出适用热水、高温、腐蚀性化工泵、油泵。该系列产品具有高效节能、噪音低、性能可靠等优点。
基本构造
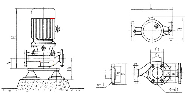
一、立式管道离心泵的基本构造是由六部分组成的
立式管道离心泵的基本构造是由六部分组成的分别是叶轮,泵体,泵轴,轴承,密封环,填料函。
1、叶轮是离心泵的核心部分,它转速高出力大,叶轮上的叶片又起到主要作用,叶轮在装配前要通过静平衡实验。叶轮上的内外表面要求光滑,以减少水流的摩擦损失。
2、泵体也称泵壳,它是水泵的主体。起到支撑固定作用,并与安装轴承的托架相连接。
3、泵轴的作用是借联轴器和电动机相连接,将电动机的转距传给叶轮,所以它是传递机械能的主要部件。
4、轴承是套在泵轴上支撑泵轴的构件,有滚动轴承和滑动轴承两种。滚动轴承使用牛油作为润滑剂加油要适当一般为2/3~3/4的体积太多会发热,太少又有响声并发热!滑动轴承使用的是透明油作润滑剂的,加油到油位线。太多油要沿泵轴渗出并且漂贱,太少轴承又要过热烧坏造成事故!在水泵运行过程中轴承的温度最高在85度一般运行在60度左右,如果高了就要查找原因(是否有杂质,油质是否发黑,是否进水)并及时处理!
5、密封环又称减漏环。叶轮进口与泵壳间的间隙过大会造成泵内高压区的水经此间隙流向低压区,影响泵的出水量,效率降低!间隙过小会造成叶轮与泵壳摩擦产生磨损。为了增加回流阻力减少内漏,延缓叶轮和泵壳的所使用寿命,在泵壳内缘和叶轮外援结合处装有密封环,密封的间隙保持在0.25~1.10mm之间为宜。
6、填料函主要由填料,水封环,填料筒,填料压盖,水封管组成。填料函的作用主要是为了封闭泵壳与泵轴之间的空隙,不让泵内的水流不流到外面来也不让外面的空气进入到泵内。始终保持水泵内的真空!当泵轴与填料摩擦产生热量就要靠水封管住水到水封圈内使填料冷却!保持水泵的正常运行。所以在水泵的运行巡回检查过程中对填料函的检查是特别要注意!在运行600个小时左右就要对填料进行更换。
产品特点
1、泵为立式结构,进出口口径相同,且位于同一中心线上,可象阀门一样安装于管路之中,外形紧凑美观,占地面积小,建筑投入低,如加上防护罩则可置于户外使用。
2、叶轮直接安装在电机的加长轴上,轴向尺寸短,结构紧凑,泵与电机轴承配置合理,能有效地平衡泵运转产生的径向和轴向负荷,从而保证了泵的运行平稳,振动小、噪音低。
3、轴封采用机械密封或机械密封组合,采用进口钛合金密封环、中型耐高温机械密封和采用硬质合金材质,耐磨密封,能有效地延长机械密封的使用寿命。
4、安装检修方便,无需拆动管道路系统,只要卸下泵联体座螺母即可抽出全部转子部件。
5、可根据使用要求即流量和扬程的需要采用泵的串、并联运行方式。
6、可根据管路布置的要求采用泵的竖式和横式安装。
主要用途
1、ISG型立式管道离心泵,供输送清水及物理化学性质类似于清水的其他液体之用,适用于工业和城市给排水、高层建筑增压送水、园林喷灌、消防增压、远距离输送、暖通制冷循环、浴室等冷暖水循环增压及设备配套,使用温度T<80℃。
2、IRG(GRG)型立式热水(高温)循环泵广泛适用于:能源、冶金、化工、纺织、造纸,以及宾馆饭店等锅炉高温热水增压循环输送及城市采用暖系统循环用泵,IRG型使用温度T<120℃,珀GRG型使用温度T<240℃。
3、IHG型立式管道化工泵,供输送不含固体颗粒,具有腐蚀性,粘度类似于水的液体,适用于石油、化工、冶金、电力、造纸、食品制药和合成纤维等部门,使用温度为20℃~+120℃。
4、YG型立式管道油泵,供输送汽油、煤油、柴油等石油产品,被输送介质温度为-20℃~+120℃。
工作要求
1、吸入压力≤1.0MPa,或泵系统最高工作压力≤1.6MPa,即泵吸入口压力+泵扬程≤1.6MPa,泵静压试验压力为2.5MPa,订货时请注明系统工作压力。泵系统工作压力大于1.6MPa时应在订货时另行提出,以便在制造时泵的过流部分和联接部分采用铸钢材料。
2、环境温度<40℃,相对湿度<95%。
3、所输送介质中固体颗粒体积含量不超过单位体积的0.1%,粒度<0.2mm。
注:如使用介质为带有细小颗粒,请在订货时说明,以便厂家采用耐磨式机械密封。
型号意义

结构示意

安装使用与维护
安装说明
1、管道离心泵安装前应检查机组紧固件有无松动现象,泵体流道有无异物堵塞,以免水泵运行时损坏叶轮和泵体。
2、管道离心泵安装时管道重量不应加在水泵上,以免使泵变形。
3、管道离心泵安装时必须拧紧地脚螺栓,以免起动时振动对泵性能的影响。
4、为了管道离心泵维修方便和使用安全,在泵的进出口管路上各安装一只调节阀及在泵出口附近安装一只压力表,以保证在额定扬程和流量范围内运行,确保泵正常运行,增长水泵的使用寿命。
5、管道离心泵安装后拨动泵轴,叶轮应无磨擦声或卡死现象,否则应将泵拆开检查原因。
6、管道离心泵分硬性联接安装和柔怀联接安装两种(见联接方式)。
泵的维护
1、运行中的维护:
(1)进口管道必须充满液体,禁止泵在汽蚀状态下长期运行。
(2)定时检查电机电流值,不得超过电机额定电流。
(3)泵进行长期运行后,由于机械磨损,使机组噪音及振动增大时,应停车检查,必要时可更换易损零件及轴承,机组大修期一般为一年。
2、机械密封维护
(1)机械密封润滑应清洁无固体颗粒。
(2)严禁机械密封在干磨情况下工作。
(3)起动前应先盘动泵(电机)几圈,以免突然起动造成石墨环断裂损坏。
(4)密封泄漏量允差3滴/分。否则应检查。
起动与停车
起动前准备:
1、试验电机转向是否正确,从电机顶部往泵看为顺时针旋转,试验时间要短,以免使机械密封干磨损。
2、打开排气阀使液体充满整个泵体,待满后关闭排气阀。
3、检查各部位是否正常。
4、用手盘动泵以使润滑液进入机械密封端面。
5、高温型应进行预热,升温速度50℃/小时,以保证各部受热均匀。
起动:
1、全开进口阀门。
2、关闭吐出管路阀门。
3、起动电机,观察泵运行是否正确。
4、调节出口阀开度以所需工况,如用户在泵出口处装有流量表或压力表,应通过调节出口阀门开度使泵在性能参数表所列的额定点上运转,如用户在泵出口处装有流量表或压力表,应通过调节出口阀门开度,测量泵的电机电流,使电机在额定电流内运行,否则将造成泵超负荷运行(即大电流运行)至使电机烧坏。调整好的出口阀门开启大与小管道工况有关。
5、检查轴封泄漏情况,正常时机械密封泄漏应小于3滴/分。
6、检查电机,轴承处温度≤70℃。
停车:
1、高温型先降温,降温速度<10℃/分,把温度降低到80℃以下,才能停车。
2、关闭吐出管路阀门。
3、停止电机。
4、关闭进口阀门
5、如长期停车,应将泵内液体放尽。
安装尺寸




